Visite de la ferme pilote agroécologique de la Durette
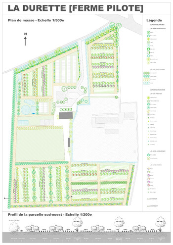
Ce système de culture cherche à diminuer le recours aux traitements. Il choisi une stratégie de diversification pour arriver à ses fins. Cette diversification amenant un ré-organisation du travail, et de l'outillage, la ferme pilote a choisi d'installer des producteurs en condition réelle d'exploitation. Outre l'amélioration de nos connaissances agronomique sur l'association de cultures fruitières et maraîchère, ce choix expérimental permettra de créer un recueil technico-économique qui aidera d'autres producteurs à s'installer selon les principes de l'agroforesterie.
Horaires détaillés
5 octobre de 09:30 à 11:30
5 octobre de 14:00 à 16:00
Les contenus partageant les mêmes tags
oct.
12
2024
oct.
11
2024
